Immobilie

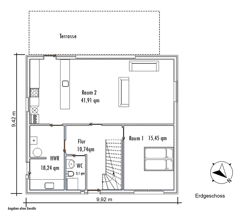
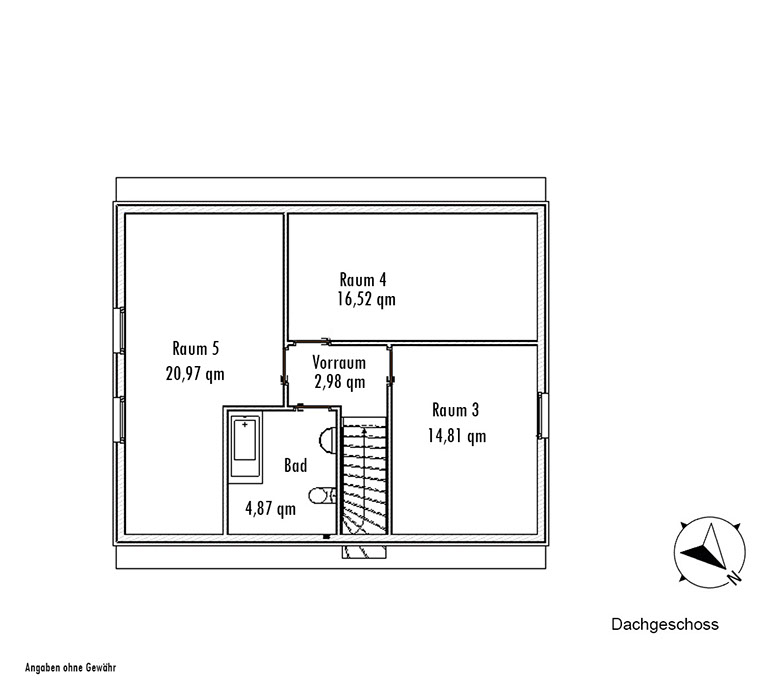
Grundrisse

Lage

Fotos

Kontakt